Monza – Via Bergamo, Centro Storico
€ 235.000
zona Via Lecco - Via Bergamo
Dettagli
Contratto Vendita
Rif IMMO-123263823
Prezzo € 235.000
Provincia Monza Brianza
Comune Monza
Zona Via Lecco - Via Bergamo
Indirizzo Via Bergamo 26">
Vani 2
Camere 1
Bagni 1
Classe energetica
G (DL 192/2005)
EPI 175 kwh/m2 anno
Piano 1 / 2
Riscaldamento autonomo
Condizioni abitabile
Spese condominiali € 80
Anno di costruzione 1930
Cucina abitabile
Consistenze
| Descrizione | Superficie | Sup. comm. |
|---|---|---|
| Principali | ||
| Immobile - 1° piano | 70 Mq | 70 Mqc |
| Accessorie | ||
| Box/Garage - piano terra | 25 Mq | 12 Mqc |
| Totale | 82 Mqc | |
Per gli amanti delle case d'epoca dal fascino senza tempo.
Monza Centro - Borgo Bergamo - In contesto dei primi del '900, proponiamo un ampio bilocale facilmente trasformabile in trilocale.
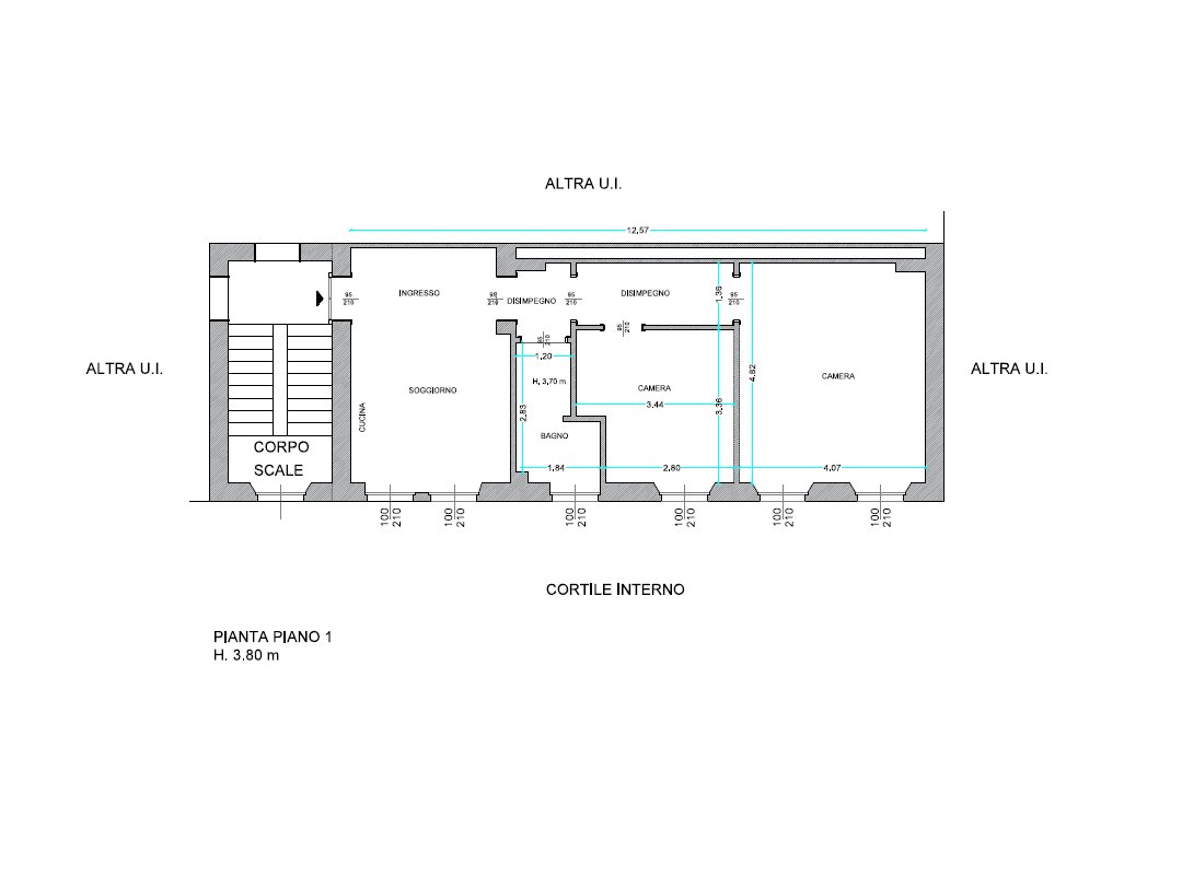
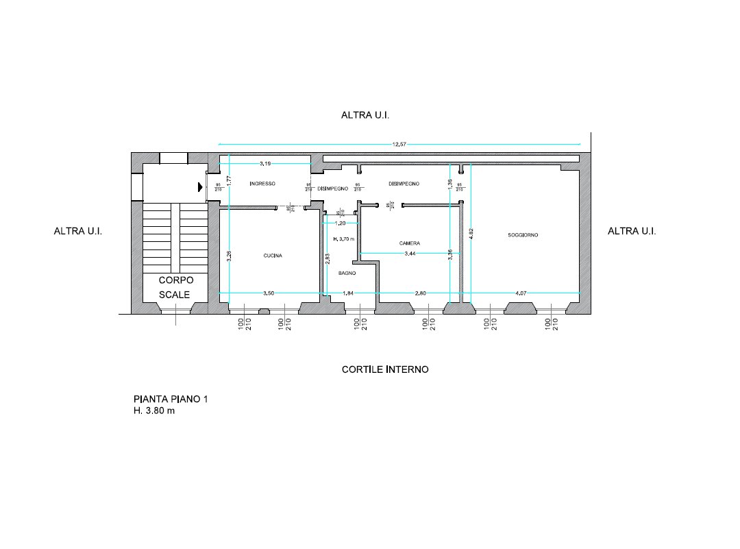
L'appartamento, situato al primo piano, conserva tutto il carattere delle abitazioni storiche: soffitti alti, porte a doppio battente, stanze passanti e ambienti ariosi che trasmettono un autentico sapore classico.
La disposizione interna comprende: ingresso, soggiorno luminoso, cucina abitabile, ampia camera da letto e bagno finestrato.
Le altezze interne superiori alla media donano luminosità e permettono la realizzazione di zone soppalcate, ideali per valorizzare ulteriormente gli spazi.
Il riscaldamento è autonomo con basse spese condominiali. Completa la proprietà un ampio box sito nello stesso contesto condominiale.
La posizione è strategica: tutti i servizi sotto casa — supermercati, scuole, palestre, aree verdi, fermate autobus — e stazioni FS Sobborghi e Centrale raggiungibili in pochi minuti a piedi.
A 15 minuti l'ingresso del Parco di Monza e della Villa Reale.
Una casa perfetta per chi ama il fascino delle dimore d'epoca, con la possibilità di personalizzare gli ambienti e vivere nel cuore più autentico di Monza.
Monza Centro - Borgo Bergamo - In contesto dei primi del '900, proponiamo un ampio bilocale facilmente trasformabile in trilocale.
L'appartamento, situato al primo piano, conserva tutto il carattere delle abitazioni storiche: soffitti alti, porte a doppio battente, stanze passanti e ambienti ariosi che trasmettono un autentico sapore classico.
La disposizione interna comprende: ingresso, soggiorno luminoso, cucina abitabile, ampia camera da letto e bagno finestrato.
Le altezze interne superiori alla media donano luminosità e permettono la realizzazione di zone soppalcate, ideali per valorizzare ulteriormente gli spazi.
Il riscaldamento è autonomo con basse spese condominiali. Completa la proprietà un ampio box sito nello stesso contesto condominiale.
La posizione è strategica: tutti i servizi sotto casa — supermercati, scuole, palestre, aree verdi, fermate autobus — e stazioni FS Sobborghi e Centrale raggiungibili in pochi minuti a piedi.
A 15 minuti l'ingresso del Parco di Monza e della Villa Reale.
Una casa perfetta per chi ama il fascino delle dimore d'epoca, con la possibilità di personalizzare gli ambienti e vivere nel cuore più autentico di Monza.
Richiedi maggiori informazioni
Mappa
Zoom della mappa
Apri con:
Apple Maps
Google Maps
Waze
Contattaci
CASIRAGHI Immobiliare
Via A. Manzoni, 56 20900 MONZA (MB)
Via A. Manzoni, 56 20900 MONZA (MB)
P.IVA: 04775610969
+390392789590





