Monza – Via Bergamo, Centro Storico
€ 215.000
zona Via Lecco - Via Bergamo
Dettagli
Contratto Vendita
Rif IMMO-125866163
Prezzo € 215.000
Provincia Monza Brianza
Comune Monza
Zona Via Lecco - Via Bergamo
Indirizzo Via Bergamo 26">
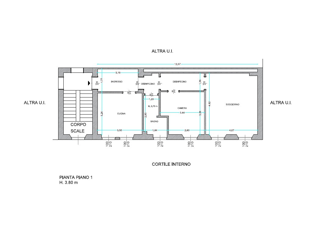
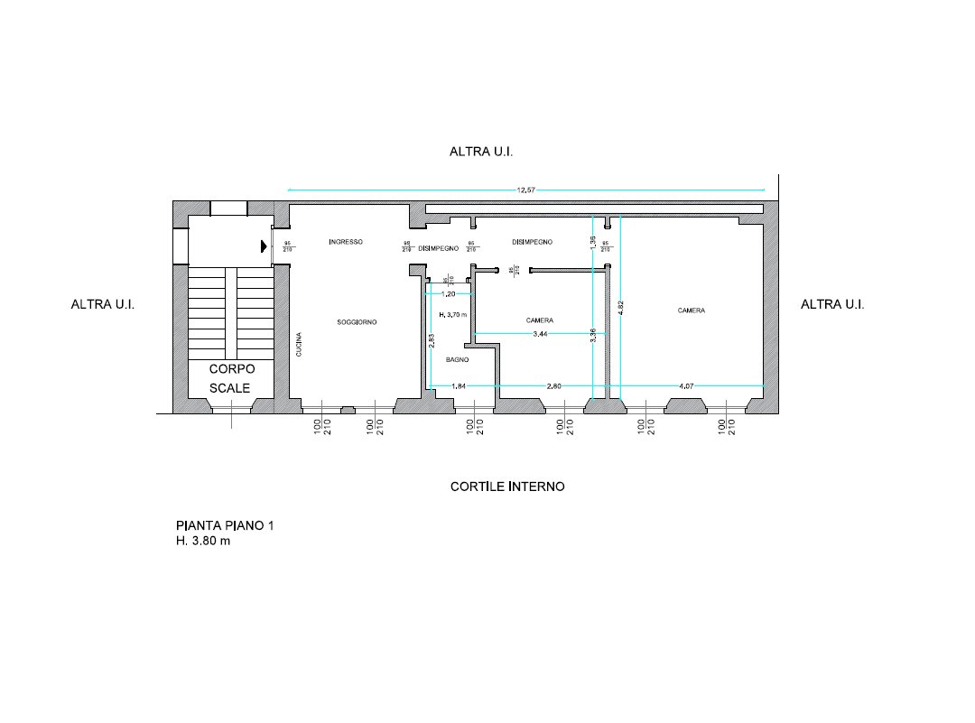
Vani 2
Camere 1
Bagni 1
Classe energetica
D (DL 192/2005)
EPI 175 kwh/m2 anno
Piano 1 / 2
Riscaldamento autonomo
Condizioni abitabile
Spese condominiali € 80
Anno di costruzione 1930
Cucina abitabile
Consistenze
| Descrizione | Superficie | Sup. comm. |
|---|---|---|
| Principali | ||
| Immobile - 1° piano | 75 Mq | 75 Mqc |
| Totale | 75 Mqc | |
Monza - In casa d'epoca dei primi '900, ampio bilocale con possibilità di trasformazione in trilocale. Posto al primo piano, composto da ingresso, soggiorno, cucina abitabile, camera da letto e bagno finestrato. Altezze interne superiori alla media conferiscono grande luminosità e danno la possibilità di creare zone soppalcate valorizzando ulteriormente gli spazi. Riscaldamento autonomo con basse spese condominiali. Disponibile in acquisto a parte un ampio box di 25 mq. nello stesso contesto. Zona servitissima: supermercati, scuole, palestre, aree verdi e fermate autobus a pochi passi. Stazione Sobborghi a 5 minuti a piedi, stazione centrale a 10 minuti e Parco di Monza/Villa Reale raggiungibile in 15 minuti. Ideale per chi cerca il fascino dell'epoca, con spazi personalizzabili, e la comodità del centro storico.
Richiedi maggiori informazioni
Mappa
Zoom della mappa
Apri con:
Apple Maps
Google Maps
Waze
Contattaci
CASIRAGHI Immobiliare
Via A. Manzoni, 56 20900 MONZA (MB)
Via A. Manzoni, 56 20900 MONZA (MB)
P.IVA: 04775610969
+390392789590





